
Planting plan shows where the trees and plants will be planted along with the size and count.

The planting schedule is a list of all the trees and plants used on the project.

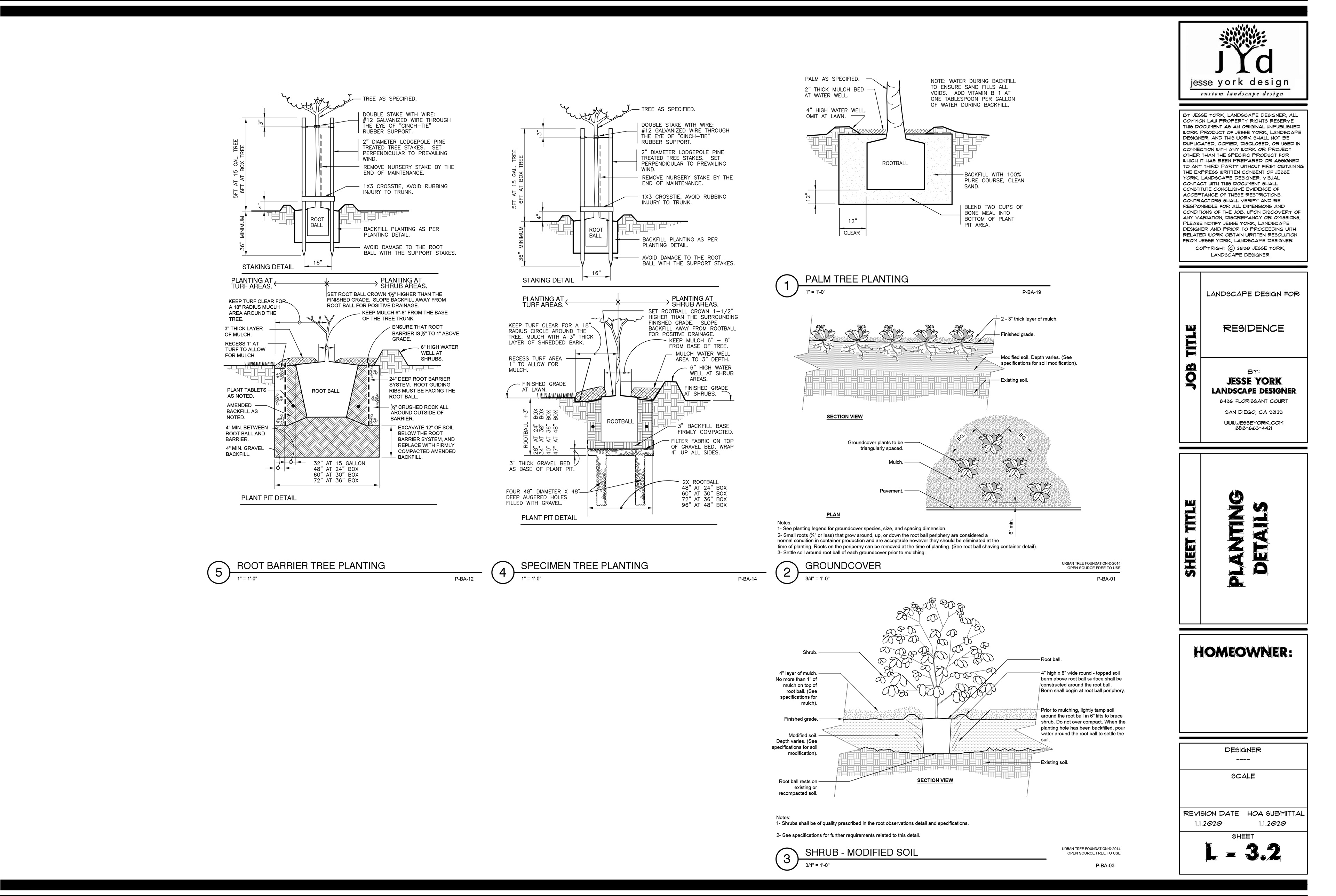
Planting details are standards depicting proper installation to ensure the health and growth of your plants.